55210 Chaillon
Maison large potentiel
Maison large potentiel
A VENDRE-Grande maison en Meuse à proximité du Lac de la Madine (moins de 6 Km 10 minutes en voiture)
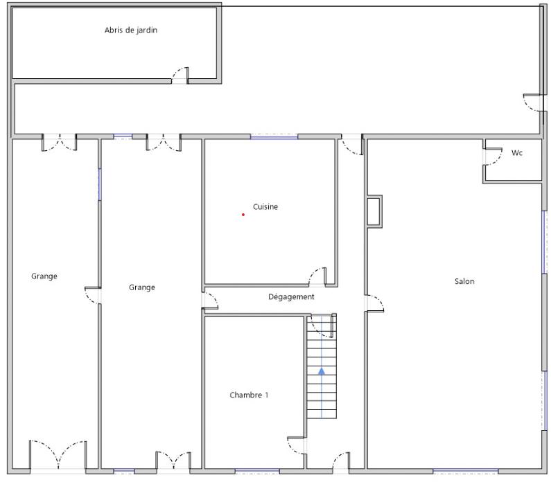
7 pièces, 5 chambres, grand salon + salle à manger et cuisine.
Une cave, une grange, un grand grenier aménageable, une pièce jouxtant la maison pouvant servir de garage et d’atelier
Dépendance extérieure, et un terrain clôturé complète cette maison.
Une opportunité à saisir pour soi ou pour un investissement locatif dans une région touristique importante avec une vraie proximité du Lac de la Madine et de ses activités (pêche, balades, windsurf, kitesurf, golf, accrobranche, balades équestres) A 10 minutes de Vigneulles-lès-Hattonchâtel ou se trouve une maison médicale avec plusieurs spécialités, pharmacie, supermarché, divers commerces, Station et garage.
Dépendance extérieure, grand jardin total huit cent quatre m² (804)
Pas de chauffage, ni sdb, avant chauffage au gaz, cuve enlevée.
Maison à fort potentiel sur un terrain de 804 m2 (habitabilité 200m²)
Des travaux sont à prévoir dont le chauffage et une ou des salles de bains.
Une maison à réhabiliter avec un grand terrain bref un vrai potentiel et une réelle opportunité à saisir. Visite et autres photos possibles ( plan ,cadastre etc...)
Prix : 35000,00€ - Diagnostic établie le 11 mars 2024
Travaux à prévoir large potentiel ! Visites possibles. ( Au pays de la mirabelle.)
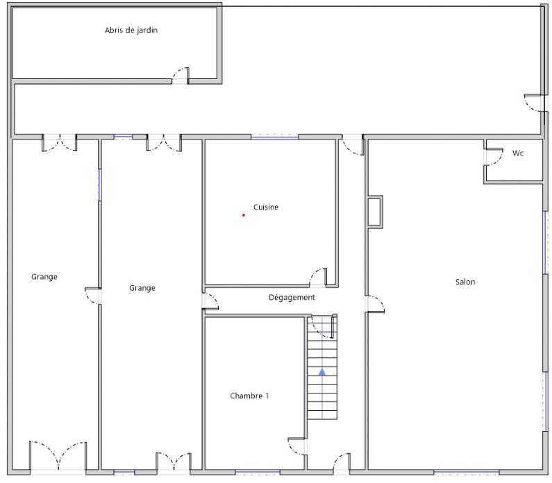
7 pièces, 5 chambres, grand salon + salle à manger et cuisine.
Une cave, une grange, un grand grenier aménageable, une pièce jouxtant la maison pouvant servir de garage et d’atelier
Dépendance extérieure, et un terrain clôturé complète cette maison.
Une opportunité à saisir pour soi ou pour un investissement locatif dans une région touristique importante avec une vraie proximité du Lac de la Madine et de ses activités (pêche, balades, windsurf, kitesurf, golf, accrobranche, balades équestres) A 10 minutes de Vigneulles-lès-Hattonchâtel ou se trouve une maison médicale avec plusieurs spécialités, pharmacie, supermarché, divers commerces, Station et garage.
Dépendance extérieure, grand jardin total huit cent quatre m² (804)
Pas de chauffage, ni sdb, avant chauffage au gaz, cuve enlevée.
Maison à fort potentiel sur un terrain de 804 m2 (habitabilité 200m²)
Des travaux sont à prévoir dont le chauffage et une ou des salles de bains.
Une maison à réhabiliter avec un grand terrain bref un vrai potentiel et une réelle opportunité à saisir. Visite et autres photos possibles ( plan ,cadastre etc...)
Prix : 35000,00€ - Diagnostic établie le 11 mars 2024
Travaux à prévoir large potentiel ! Visites possibles. ( Au pays de la mirabelle.)
35 000 €
200 m²
Code Postal
55210
Ville
Chaillon
Type de bien
Maison
GES
En cours
Classe énergie
En cours
Mise en ligne
17 février 2026
Nombre de vues
768