67170 Brumath
Particulier vend appartement 3 pièces, 56m² avec garage dans résidence de standing à 15km de Strasbourg
Particulier vend appartement 3 pièces, 56m² avec garage dans résidence de standing à 15km de Strasbourg
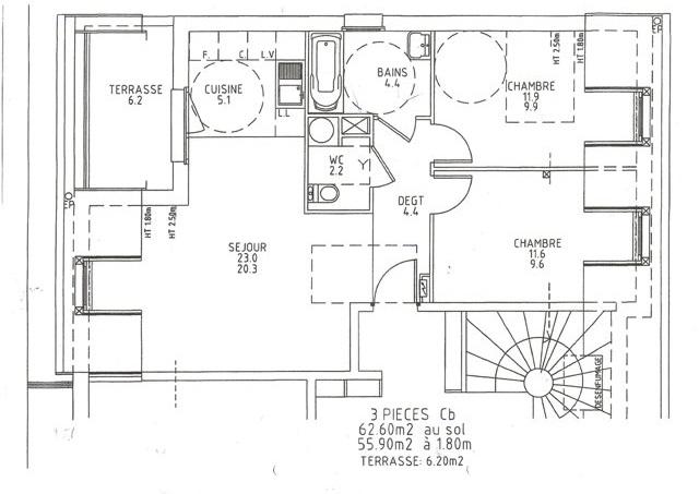
Situé au 2ème et dernier étage d'une résidence de standing avec ascenseur, d'une surface de 56m2 habitable (62m2 au sol).
Comprenant 1 séjour avec cuisine US entièrement équipée, 2 chambres, 1 salle de bains avec fenêtre, 1 WC indépendant, 1 terrasse, 1 garage en sous-sol accessible par ascenseur.
Chauffage au sol par pompe à chaleur (faible coût d'utilisation).
Accessible aux personnes à mobilité réduite.
Appartement traversant, vue dégagée sur jardins et maisons individuelles, terrassse orientée ouest.
Environnement calme, proche du centre-ville, situé à 5' de la gare de Brumath à pied (dessertes vers Strasbourg fréquentes en moins de 15').
Comprenant 1 séjour avec cuisine US entièrement équipée, 2 chambres, 1 salle de bains avec fenêtre, 1 WC indépendant, 1 terrasse, 1 garage en sous-sol accessible par ascenseur.
Chauffage au sol par pompe à chaleur (faible coût d'utilisation).
Accessible aux personnes à mobilité réduite.
Appartement traversant, vue dégagée sur jardins et maisons individuelles, terrassse orientée ouest.
Environnement calme, proche du centre-ville, situé à 5' de la gare de Brumath à pied (dessertes vers Strasbourg fréquentes en moins de 15').
185 000 €
56 m²
Code Postal
67170
Ville
Brumath
Type de bien
Appartement
GES
A
Classe énergie
C
Mise en ligne
7 février 2026
Nombre de vues
1 663