68250 Rouffach
Appartement 2 pièces de 52 m²
Appartement 2 pièces de 52 m²
Particulier vend bel appartement 2 pièces d'environ 52 m² à ROUFFACH.
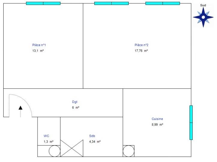
Le logement comprend un séjour (18 m²), une chambre (13 m²), un dégagement, une cuisine, une salle de bains, un WC séparé, et une grande cave (15 m²). L’appartement est lumineux (orienté plein sud) et est équipé d’un chauffage électrique individuel, dont 2 panneaux rayonnants à inertie de marque ATERNO (installation en 2022 pour 4600€). Les fenêtres sont en PVC double vitrage isolant (installation en 2018 pour 2240€). Des travaux permettraient de redonner une nouvelle fraîcheur à l'appartement, ce qui peut être l'occasion de le mettre à votre goût.
L’appartement se trouve au 1er étage d’une petite résidence construite en 1978 et bien gérée.
La copropriété est composée de 8 lots. Les charges de copropriété sont faibles (env. 30 € par mois).
Date de réalisation du diagnostic énergétique : 13/05/2024
- DPE : E
- GES : B
Le prix de vente est de 98 000 €
Pour plus d’informations ou pour le visiter, contactez-moi.
Les informations sur les risques auxquels ce bien est exposé sont disponibles sur le site www.georisques.gouv.fr.
Le logement comprend un séjour (18 m²), une chambre (13 m²), un dégagement, une cuisine, une salle de bains, un WC séparé, et une grande cave (15 m²). L’appartement est lumineux (orienté plein sud) et est équipé d’un chauffage électrique individuel, dont 2 panneaux rayonnants à inertie de marque ATERNO (installation en 2022 pour 4600€). Les fenêtres sont en PVC double vitrage isolant (installation en 2018 pour 2240€). Des travaux permettraient de redonner une nouvelle fraîcheur à l'appartement, ce qui peut être l'occasion de le mettre à votre goût.
L’appartement se trouve au 1er étage d’une petite résidence construite en 1978 et bien gérée.
La copropriété est composée de 8 lots. Les charges de copropriété sont faibles (env. 30 € par mois).
Date de réalisation du diagnostic énergétique : 13/05/2024
- DPE : E
- GES : B
Le prix de vente est de 98 000 €
Pour plus d’informations ou pour le visiter, contactez-moi.
Les informations sur les risques auxquels ce bien est exposé sont disponibles sur le site www.georisques.gouv.fr.
98 000 €
52 m²
Code Postal
68250
Ville
Rouffach
Type de bien
Appartement
GES
E
Classe énergie
B
Mise en ligne
16 avril 2026
Nombre de vues
2 762