57180 Terville
Appartement F2 en RDC | TERVILLE
Appartement F2 en RDC | TERVILLE
Appartement situé sur la commune de TERVILLE Clos des Mesoyers.
Idéalement situé a la sortie/entrée d'autoroute (A31), pour deplacement au Luxembourg et de tous commerces (Super Grenn...).
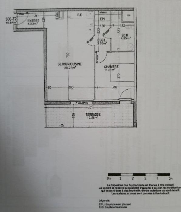
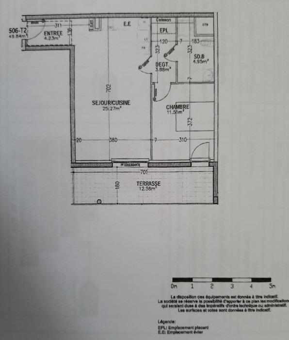
L'appartement de 49,60 m² est composé : d'une entrée donnant sur le salon séjour avec accès balcon 12 m² une cuisine équipée ouverte, un dégagement, 1 chambre, une salle d'eau avec wc.
Emplacement parking sécurisé.
Chauffage individuel Gaz neuf remplacé en 2023.
Fibre Optique.
Bien idéal pour investisseur.
Bien à vendre loué, plus de bail en cours.
2 mois de préavis négocié avec le locataire.
Charges annuelles de copropriété : environ 1200 euros.
Taxe foncière 2024 : 809 euros
Idéalement situé a la sortie/entrée d'autoroute (A31), pour deplacement au Luxembourg et de tous commerces (Super Grenn...).
L'appartement de 49,60 m² est composé : d'une entrée donnant sur le salon séjour avec accès balcon 12 m² une cuisine équipée ouverte, un dégagement, 1 chambre, une salle d'eau avec wc.
Emplacement parking sécurisé.
Chauffage individuel Gaz neuf remplacé en 2023.
Fibre Optique.
Bien idéal pour investisseur.
Bien à vendre loué, plus de bail en cours.
2 mois de préavis négocié avec le locataire.
Charges annuelles de copropriété : environ 1200 euros.
Taxe foncière 2024 : 809 euros
161 000 €
49 m²
Code Postal
57180
Ville
Terville
Type de bien
Appartement
GES
C
Classe énergie
C
Mise en ligne
8 mars 2026
Nombre de vues
6 176