54500 Vandœuvre-lès-Nancy
MAGNIFIQUE F3 RESIDENCE DE STANDING SECURISEE
MAGNIFIQUE F3 RESIDENCE DE STANDING SECURISEE
AGENCE S’ABSTENIR MERCI !!!!!
Pas de frais d’agence. Vendu par particulier.
Appartement très lumineux, calme, très bon état. Le Gardien loge dans l'immeuble. 2 Badges pour 2 sas d'entrées sécurisées.
Estimé par expert immobilier comme appartement coup de cœur, grâce à son esthétique et un très bon rendement locatif de 6% - loyer 750 € Minimum depuis plus de 10 ans, loué jusqu’au 31/01/2026.
Idéal pour investissement locatif, étudiants ou pour un premier achat résidence principale avec 2 chambres.
Orientation SUD-OUEST.
Résidence de bon standing avec espaces verts, proche commodités, voisinage de qualité.
Portes-fenêtres battantes avec soubassement, Menuiserie PVC VIR - double vitrage vertical.
chauffage urbain collectif, thermostat avec régulation pièce par pièce, intermittence central collectif.
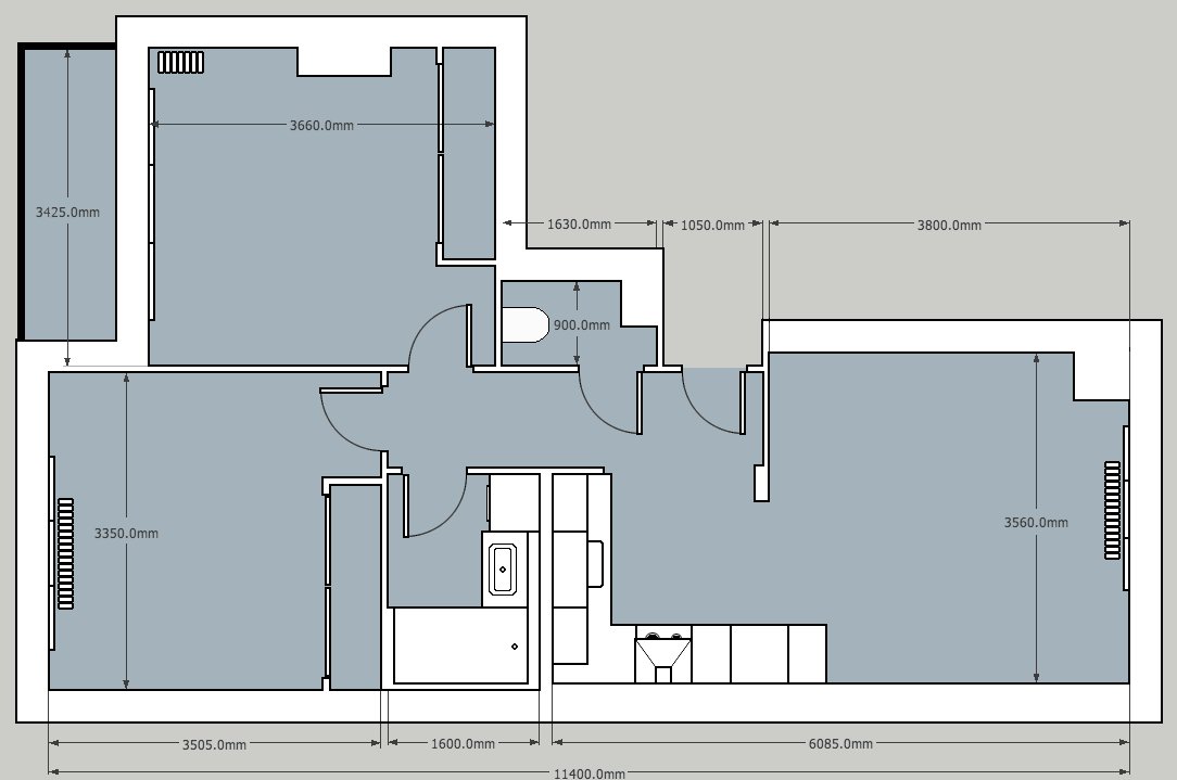
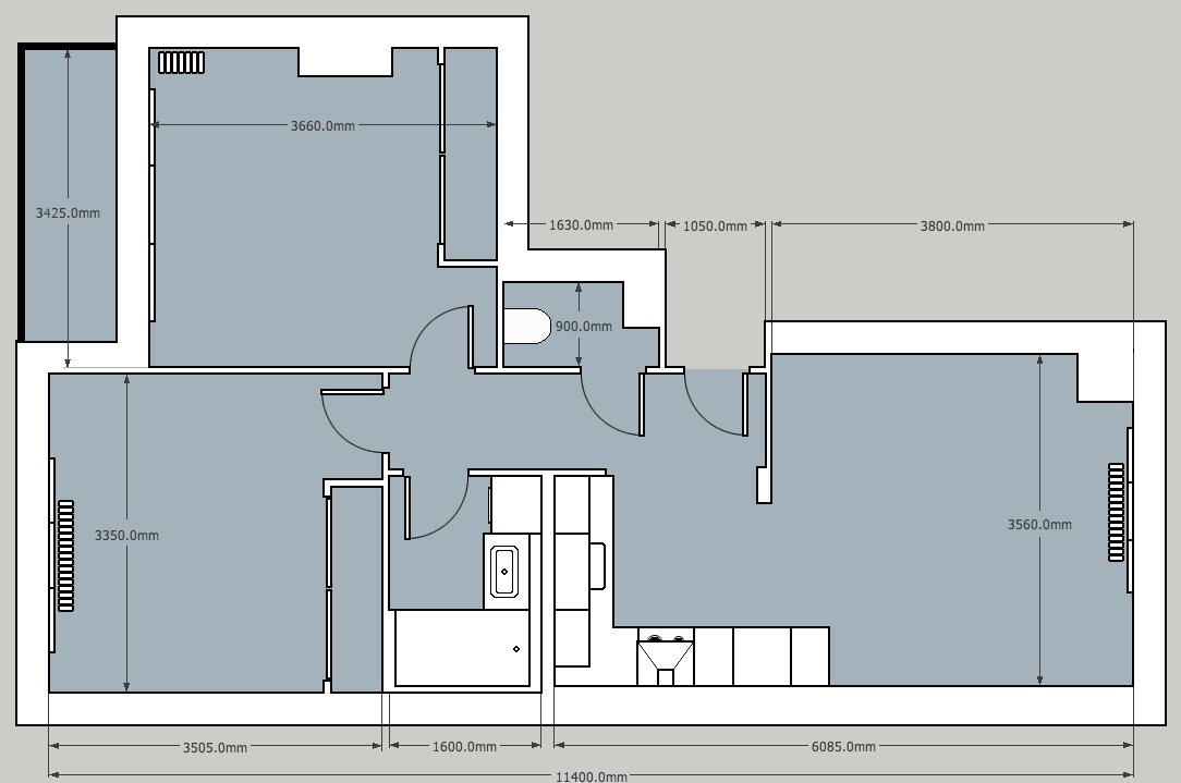
Entrée 4,170 m² - Cuisine équipée/ séjour 18,060 m², salle de douche avec chauffe serviettes 3.20m², wc indépendant 1.330m², 1 chambre avec placard aménagé 11,76m², 1 chambre avec placard aménagé 12,28 m² et un beau balcon 4,2 m², local vélo. Pas de garage mais il y a beaucoup de places de parking non payantes dans la rue.
No agency fees. Sold per individual.
Apartment very bright, quiet, very good condition. The Caretaker is staying in the building. 2 Badges for 2 secure entrance locks.
Estimated by real estate expert as a favorite apartment, thanks to its aesthetics and a very good rental yield of 6% - rent 750 € Minimum for more than 10 years, rented until 01/31/2026.
Ideal for rental investment, students or for a first purchase main residence with 2 bedrooms.
SOUTHWEST orientation.
Residence of good standing with green spaces, close to amenities, quality neighborhood.
Hinged French windows with basement, PVC carpentry VIR - vertical double glazing.
collective district heating, thermostat with room-by-room regulation, collective central intermittence.
Entrance 4,170 m2 - Equipped kitchen/ living room 18,060 m 2, shower room with heated towels 3.20m 2, separate toilet 1.330m 2, 1 bedroom with fitted wardrobe 11,76m 2, 1 bedroom with fitted wardrobe 12,28 m2 and a beautiful balcony 4,2 m 2, bicycle storage. No garage but there are many free parking spaces in the street.
Pas de frais d’agence. Vendu par particulier.
Appartement très lumineux, calme, très bon état. Le Gardien loge dans l'immeuble. 2 Badges pour 2 sas d'entrées sécurisées.
Estimé par expert immobilier comme appartement coup de cœur, grâce à son esthétique et un très bon rendement locatif de 6% - loyer 750 € Minimum depuis plus de 10 ans, loué jusqu’au 31/01/2026.
Idéal pour investissement locatif, étudiants ou pour un premier achat résidence principale avec 2 chambres.
Orientation SUD-OUEST.
Résidence de bon standing avec espaces verts, proche commodités, voisinage de qualité.
Portes-fenêtres battantes avec soubassement, Menuiserie PVC VIR - double vitrage vertical.
chauffage urbain collectif, thermostat avec régulation pièce par pièce, intermittence central collectif.
Entrée 4,170 m² - Cuisine équipée/ séjour 18,060 m², salle de douche avec chauffe serviettes 3.20m², wc indépendant 1.330m², 1 chambre avec placard aménagé 11,76m², 1 chambre avec placard aménagé 12,28 m² et un beau balcon 4,2 m², local vélo. Pas de garage mais il y a beaucoup de places de parking non payantes dans la rue.
No agency fees. Sold per individual.
Apartment very bright, quiet, very good condition. The Caretaker is staying in the building. 2 Badges for 2 secure entrance locks.
Estimated by real estate expert as a favorite apartment, thanks to its aesthetics and a very good rental yield of 6% - rent 750 € Minimum for more than 10 years, rented until 01/31/2026.
Ideal for rental investment, students or for a first purchase main residence with 2 bedrooms.
SOUTHWEST orientation.
Residence of good standing with green spaces, close to amenities, quality neighborhood.
Hinged French windows with basement, PVC carpentry VIR - vertical double glazing.
collective district heating, thermostat with room-by-room regulation, collective central intermittence.
Entrance 4,170 m2 - Equipped kitchen/ living room 18,060 m 2, shower room with heated towels 3.20m 2, separate toilet 1.330m 2, 1 bedroom with fitted wardrobe 11,76m 2, 1 bedroom with fitted wardrobe 12,28 m2 and a beautiful balcony 4,2 m 2, bicycle storage. No garage but there are many free parking spaces in the street.
139 000 €
51 m²
Code Postal
54500
Ville
Vandœuvre-lès-Nancy
Type de bien
Appartement
GES
C
Classe énergie
D
Mise en ligne
14 février 2026
Nombre de vues
1 575