68190 Ensisheim
Appartement - 3 pièces
Appartement - 3 pièces
Ensisheim, résidence Saint Hubert – Beau et spacieux appartement au calme sans vis à vis, de 3 pièces 68 m² au 2ème et dernier étage dans une petite résidence sans ascenseur.
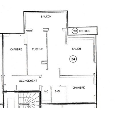
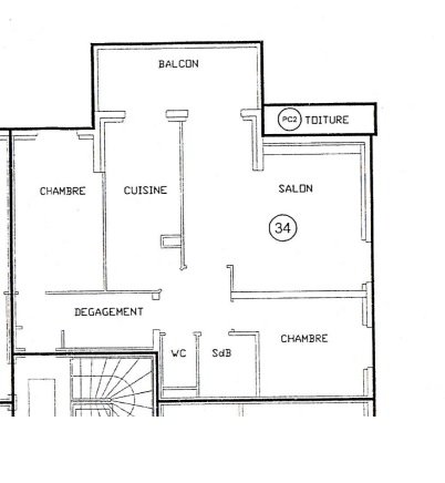
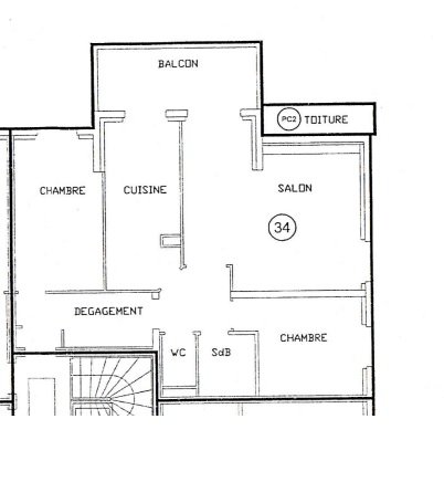
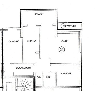
L’appartement comprenant une cuisine équipée, un salon/séjour lumineux donnant accès au balcon de 9 m², deux chambres, une salle de bain avec baignoire/douche, un WC séparé, ainsi qu'une cave et un parking privatif clos en sous-sol.
Balcon 9 m² couvert par un store banne électrique, vue sur les Vosges, pas de vis à vis.
Proche collège, arrêt de bus, et des commerces du centre ville.
L’appartement comprenant une cuisine équipée, un salon/séjour lumineux donnant accès au balcon de 9 m², deux chambres, une salle de bain avec baignoire/douche, un WC séparé, ainsi qu'une cave et un parking privatif clos en sous-sol.
Balcon 9 m² couvert par un store banne électrique, vue sur les Vosges, pas de vis à vis.
Proche collège, arrêt de bus, et des commerces du centre ville.
175 000 €
68 m²
Code Postal
68190
Ville
Ensisheim
Type de bien
Appartement
GES
D
Classe énergie
D
Mise en ligne
1 janvier 2026
Nombre de vues
8 296